GM Service Manual Online
For 1990-2009 cars only
Makes
🢒
Cadillac
🢒
2007
🢒
CTS
🢒
Power and Signal Distribution
🢒
Power Outlets
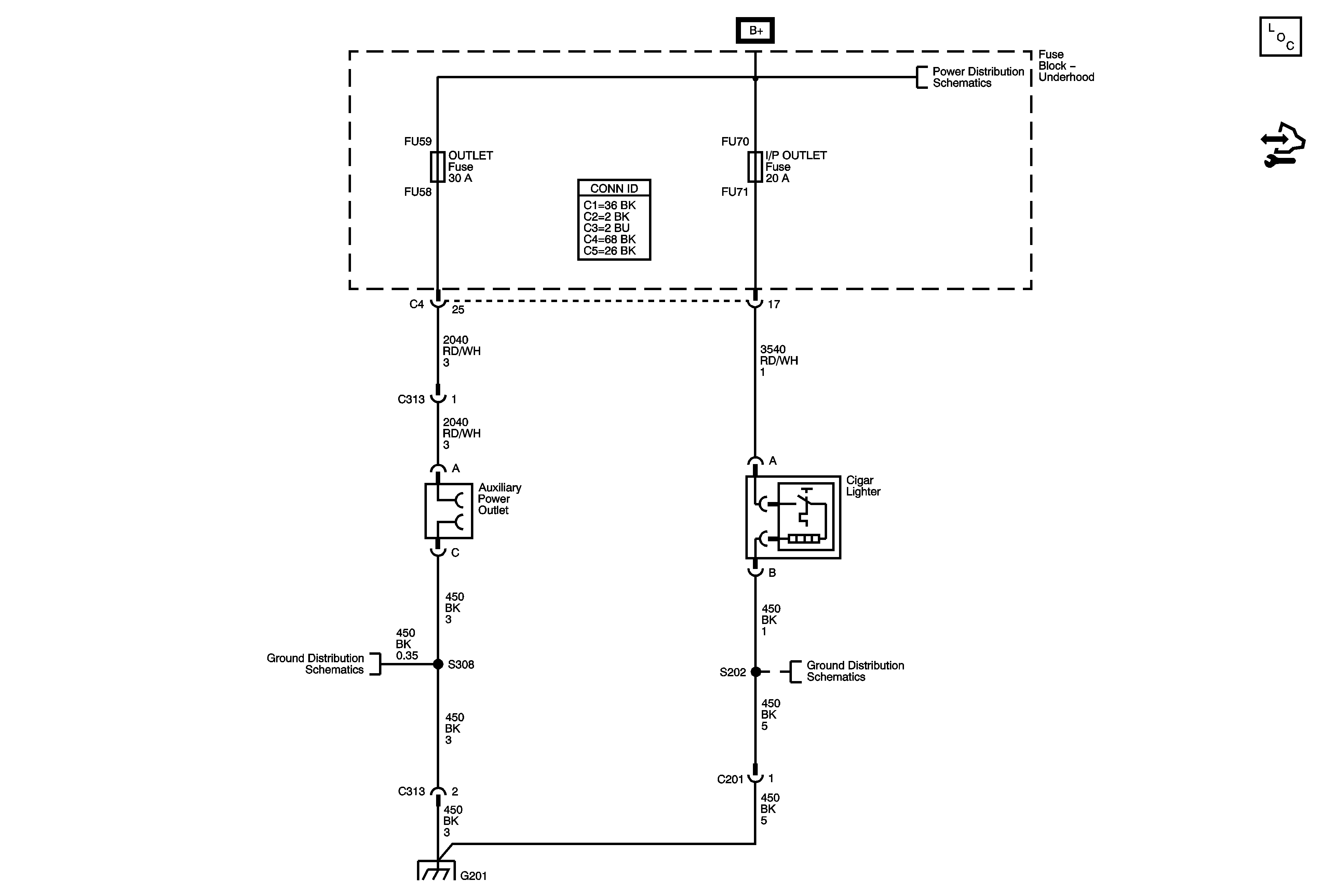
🢒 Cigar Lighter/Power Outlet Schematics
Cigar Lighter and Auxiliary Power Outlet
Master Electrical Component List
Control Module References
Underhood Fuse Block Headlamp Relays/Fuses, Accessory relay, I/P Outlet, Outlet, Wiper Module, Wiperswitch, and Elec PRNDL Fuses
G201
G201
G201