GM Service Manual Online
For 1990-2009 cars only
Makes
🢒
Chevrolet
🢒
2003
🢒
Blazer - 4WD - RHD
🢒
Body and Accessories
🢒
Doors
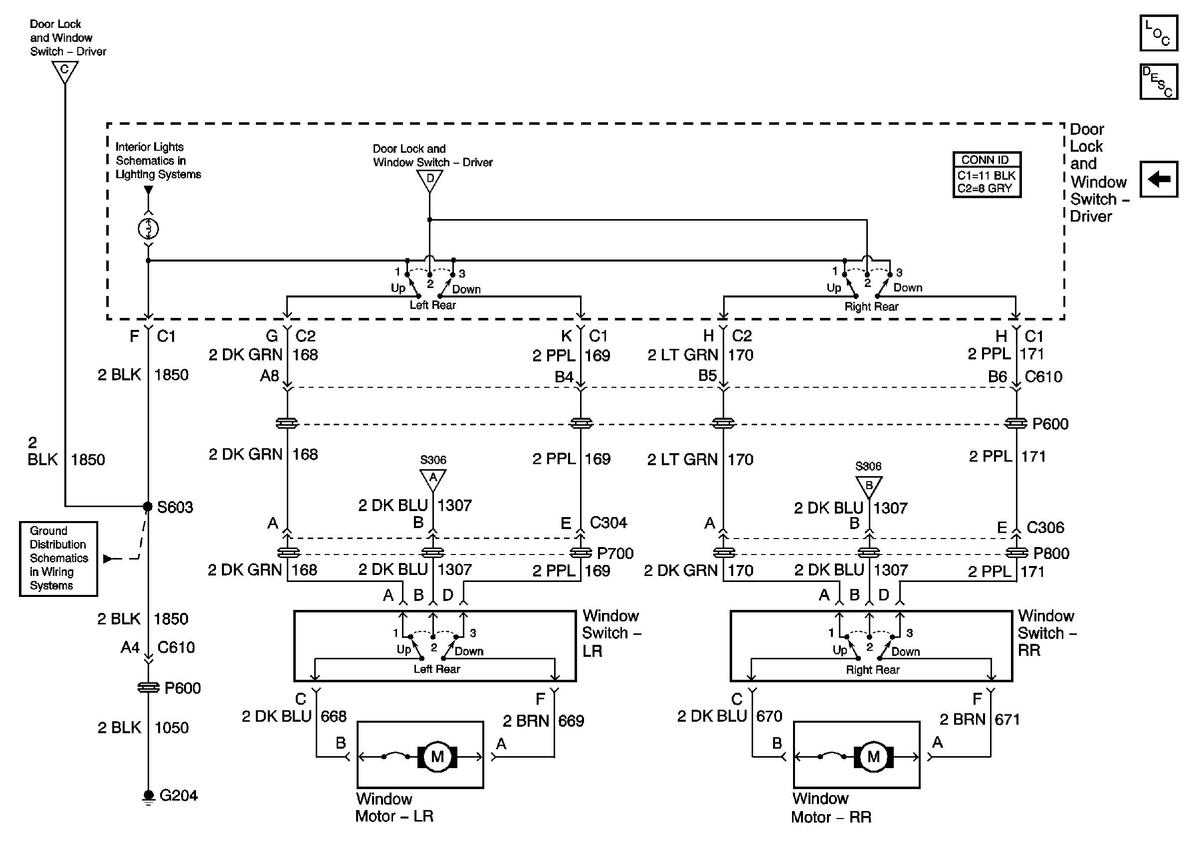
🢒 Power Window Schematics
Figure
1:
Power Distribution
Master Electrical Component List
Power Windows Description and Operation
Power and Ground
Ign START, RUN and ACC Bus Bar
Power and Ground
Power and Ground
Power and Ground
Power and Ground
Power and Ground
Figure
2:
Power and Ground
Master Electrical Component List
Power Windows Description and Operation
Power Distribution
Power Distribution
Power and Ground
Power Distribution
G202 and G204
Power Distribution
Power Distribution