GM Service Manual Online
For 1990-2009 cars only
Makes
🢒
Chevrolet
🢒
2006
🢒
Cobalt
🢒
Vehicle Control Systems
🢒
Vehicle DTC Information
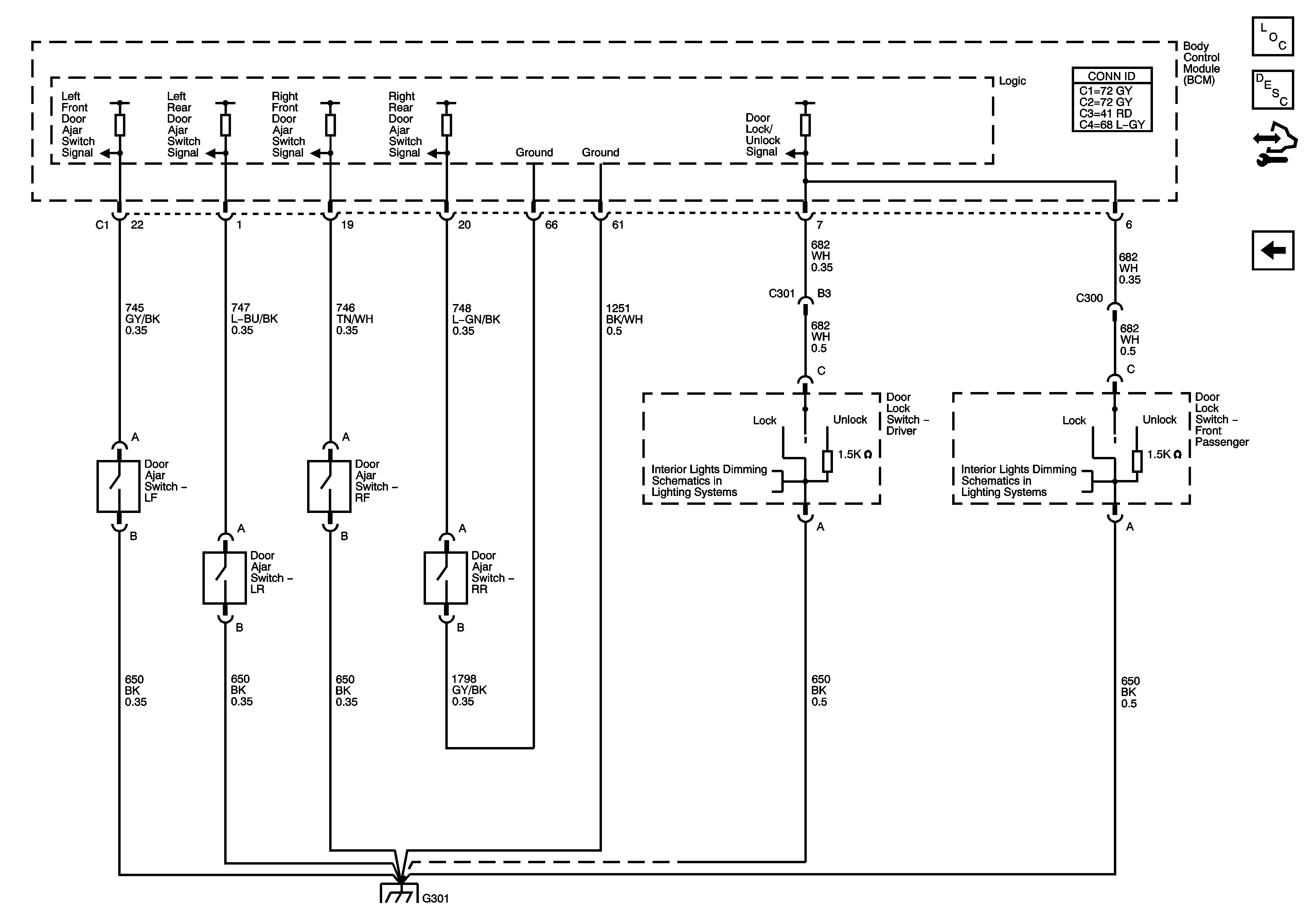
🢒 Door Lock/Indicator Schematics
Figure
1:
Door Lock Indicator
Master Electrical Component List
Power Door Locks Description and Operation
Control Module References
Door Lock and Indicators 2 of 2
RAP, DOOR LOCK, DOOR UNLOCK, INTERIOR LAMPS Relays, DOOR LOCK RADIO, PWR WINDOW, SUNROOF, INT LPS, ECM/TCM, SDM, CURRENT SENSOR Fuses
G109, G203, G306
Figure
2:
Door Lock and Indicators 2 of 2
Master Electrical Component List
Power Door Locks Description and Operation
Control Module References
Door Lock/Indicator
A/T Shift Lock Control Assembly Mirror and Doors
A/T Shift Lock Control Assembly Mirror and Doors
G301 (2 of 2)
G301 (2 of 2)