GM Service Manual Online
For 1990-2009 cars only
Figure 1:

B+ Bussing and the EPS Fuse


Object Number: 1381656  Size: FS
Master Electrical Component List
Control Module References
PWD WDW, SUNROOF, ABS, ABS PWR, HVAC BLOWER, AUX1 OUTLET, AUX2/CARGO, CIGAR, and ECM/TCM Fuses
Figure 2:

PWR WDW Fuse, SUNROOF Fuse, 20A ABS Fuse, ABS PWR Fuse, HVAC BLOWER Fuse, AUX1 OUTLET Fuse, AUX2/CARGO Fuse, CIGAR Fuse, and the ECM/TCM Fuse


Object Number: 1381658  Size: FS
Master Electrical Component List
Control Module References
LH HDLP, RH HDLP, HTD SEATS, BRAKE, PREM AUD, BATT FEED Fuses, and PWR SEATS CB
B+ Bussing
B+ Bussing
Figure 3:

PWR SEATS CB, LH HDLP Fuse, RH HDLP Fuse, HTD SEATS Fuse, BRAKE Fuse, PREM AUD Fuse and the BATT FEED Fuse Supply to the I/P Fuse Block B+ Fuses


Object Number: 1381659  Size: FS
Master Electrical Component List
Control Module References
RADIO, BCM/CLUSTER, INT LTS, PARK, HZRD, and LOCK/MIRROR Fuses
PWD WDW, SUNROOF, ABS, ABS PWR, HVAC BLOWER, AUX1 OUTLET, AUX2/CARGO, CIGAR, and ECM/TCM Fuses
B+ Bussing
Figure 4:

RADIO Fuse, BCM/CLSTR Fuse, INT LTS/ONSTAR Fuse, PARK Fuse, HZRD Fuse, and the LOCK/MIRROR Fuse


Object Number: 1381664  Size: FS
Master Electrical Component List
Control Module References
Ignition Circuits
LH HDLP, RH HDLP, HTD SEATS, BRAKE, PREM AUD, BATT FEED Fuses, and PWR SEATS CB
B+ Bussing
Figure 5:

IGN Fuse and the Ignition Circuits


Object Number: 1381657  Size: FS
Master Electrical Component List
Control Module References
BACKUP Fuse, PWR TRAIN Fuse, ENG IGN Fuse and the 10A ABS Fuse
RADIO, BCM/CLUSTER, INT LTS, PARK, HZRD, and LOCK/MIRROR Fuses
B+ Bussing
Figure 6:

BACKUP Fuse, PWR TRAIN Fuse, ENG IGN Fuse and the 10A ABS Fuse


Object Number: 1381661  Size: FS
Master Electrical Component List
Control Module References
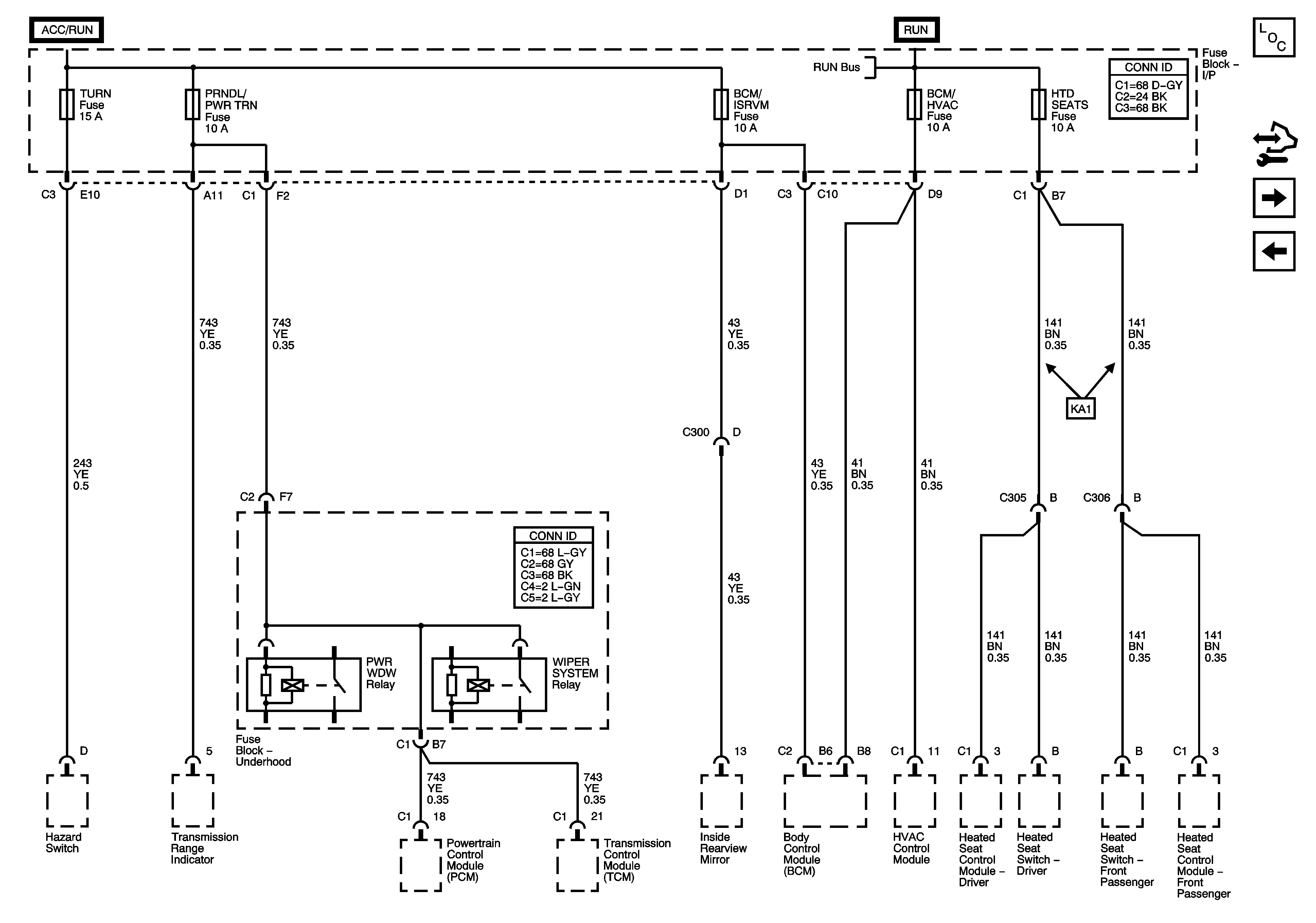
TURN, BCM, RADIO(IGN), HVAC, and HTD SEATS Fuses
Ignition Circuits
Ignition Circuits
Figure 7:

TURN Fuse, PRNDL/PWR TRAIN Fuse, BCM/ISRVM Fuse, BCM/HVAC Fuse, and the HTD SEATS Fuse


Object Number: 1381666  Size: FS
Master Electrical Component List
Control Module References
IGN1, BCM(IGN), AIR BAG, EPS, and CRUISE Fuses
BACKUP Fuse, PWR TRAIN Fuse, ENG IGN Fuse and the 10A ABS Fuse
Ignition Circuits
Ignition Circuits
Figure 8:

IGN 1 Fuse, BCM (IGN) Fuse, AIR BAG Fuse, EPS Fuse, and the CRUISE Fuse


Object Number: 1381668  Size: FS
Master Electrical Component List
Control Module References
ENG IGN, INJ, EMISS, and ETC Fuses
TURN, BCM, RADIO(IGN), HVAC, and HTD SEATS Fuses
Ignition Circuits
SIR Caution for Zoning
SIR Caution for Zoning
Figure 9:

INJ Fuse, EMISS Fuse, and ETC Fuse - Controlled by the ENG MAIN Relay


Object Number: 1381663  Size: FS
Master Electrical Component List
Control Module References
IGN1, BCM(IGN), AIR BAG, EPS, and CRUISE Fuses
B+ Bussing