GM Service Manual Online
For 1990-2009 cars only
Makes
🢒
GMC_Truck
🢒
2006
🢒
TopKick C-Series (Conventional) C4/C5
🢒
Accessories
🢒
Power Outlets
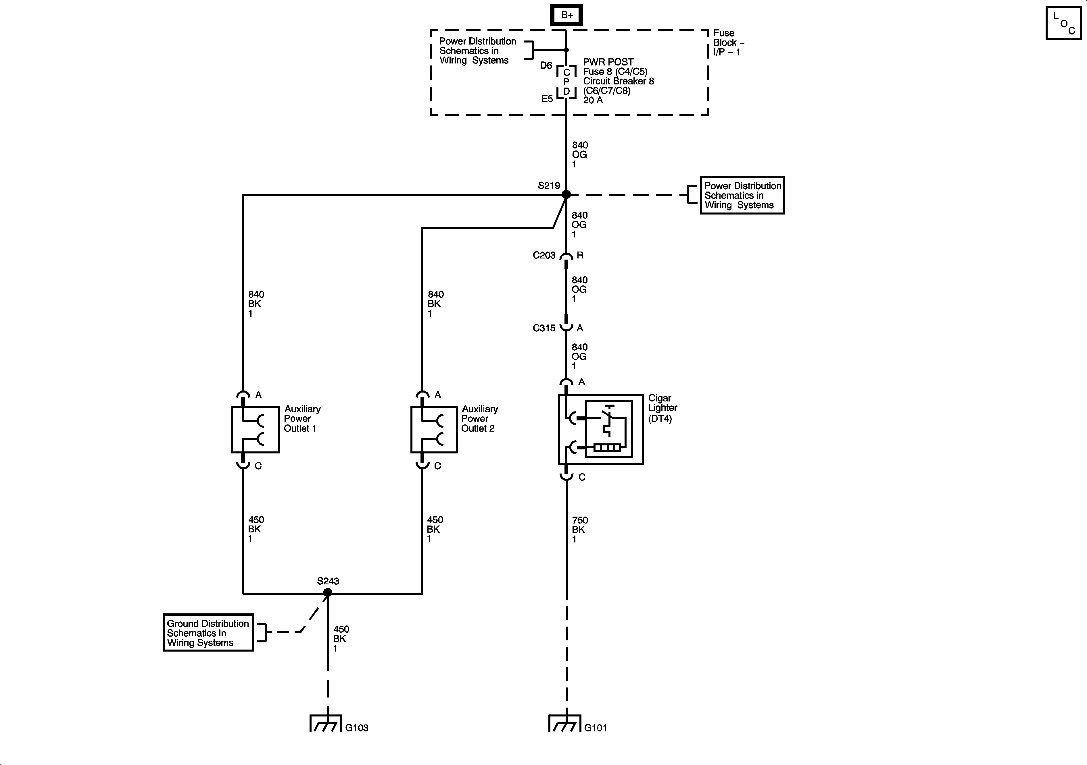
🢒 Cigar Lighter/Power Outlet Schematics
Master Electrical Component List
CHMSL, PWR POST, and RDO/CHIME Fuses/Circuit Breakers
CHMSL, PWR POST, and RDO/CHIME Fuses/Circuit Breakers
G103, G105, and G106
G101 - 1 of 2