GM Service Manual Online
For 1990-2009 cars only
Figure 1:

1.2L


Object Number: 1291853  Size: FS
Master Electrical Component List
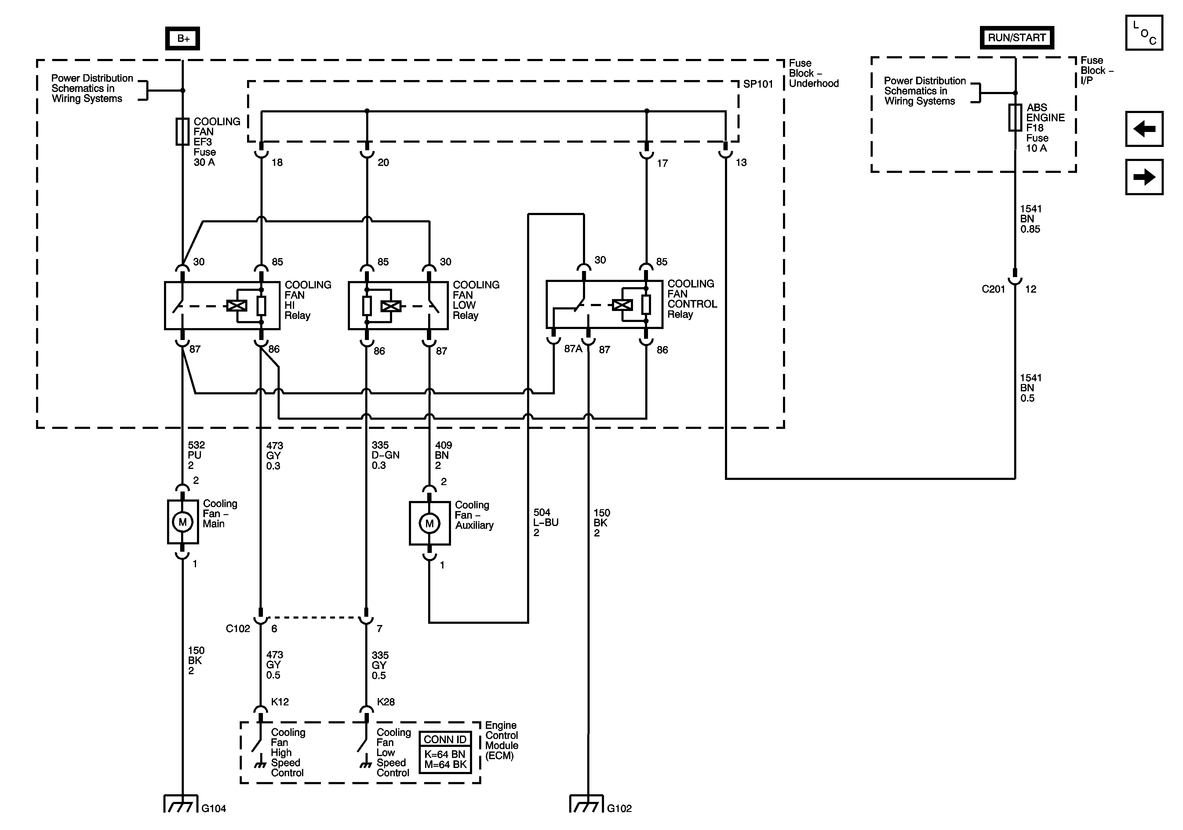
Engine Cooling 1.4L-1.5L
Power Distribution - Battery Feed
Power Distribution - Battery Feed
Engine Controls Power, Ground and MIL
Ground Distribution - G104
Figure 2:

1.4L, 1.5L


Object Number: 1679819  Size: FS
Master Electrical Component List
Engine Cooling - 1.2L
Engine Cooling - 1.6L
Power Distribution - Battery Feed
Power Distribution - Battery Feed
Ground Distribution - G104
Ground Distribution - G102 cont.
Figure 3:

1.6L


Object Number: 1679823  Size: FS
Master Electrical Component List
Engine Cooling 1.4L-1.5L
Power Distribution - Battery Feed
Engine Controls Power, Ground and MIL
Ground Distribution - G104