GM Service Manual Online
For 1990-2009 cars only
Figure 1:

Module Power, Ground, Serial Data, and MIL


Object Number: 1863734  Size: FS
Master Electrical Component List
Engine Control Component Description
Control Module References
Engine Data Sensors - 5-Volt and Low Reference
Power, Ground, and Serial Data
Driver Information Center (DIC)
Engine Data Sensors - EGR Valve and Glow Plug Controls
DPF Sensor, Exhaust Temperature Sensors,Exhaust Brake/Throttle Solenoid
Starting LF8
Engine Data Sensors - Pressure, Temperature, and Turbocharger Controls
Engine Data Sensors - EGR Valve and Glow Plug Controls
DPF Sensor, Exhaust Temperature Sensors,Exhaust Brake/Throttle Solenoid
Indicators and Illumination
Fuse Block I/P 1: Circuit Breaker 6
Fuse Block I/P 1: Circuit Breaker 6
Block 1: Fuses 3 and 4, and Fuse Block I/P Circuit Breakers 12 and 13, and HYDROMAX Fuse
Fuse Block 1: Fuses 6 and 7, Fuse Block 2: Fuse 8, and Fuse Block I/P 2: Circuit Breakers 17, 18, 20, 21, 22, and 24
Splice Packs and Modules - 1 of 2
Controller Area Network (CAN) Connector and Data Link Connector (DLC)
G400 and G402 - 8 of 8
Figure 2:

Engine Data Sensors - 5-Volt and Low Reference


Object Number: 1863746  Size: FS
Master Electrical Component List
Engine Control Component Description
Control Module References
Engine Data Sensors - Pressure, Turbocharger Controls, and Intake Throttle
Module Power, Ground, Serial Data, and MIL
Figure 3:

Engine Data Sensors - Pressure, Turbocharger Controls, and Intake Throttle


Object Number: 1863772  Size: FS
Master Electrical Component List
Turbocharger System Description
Control Module References
Engine Data Sensors - Pressure, Temperature, and Turbocharger Controls
Engine Data Sensors - 5-Volt and Low Reference
Engine Controls Schematic Icons
Figure 4:

Engine Data Sensors - Pressure, Temperature, and Turbocharger Controls - 2 of 2


Object Number: 1863774  Size: FS
Master Electrical Component List
Engine Control Component Description
Control Module References
Engine Data Sensors - Pedal Position, High Idle Switch
Engine Data Sensors - Pressure, Turbocharger Controls, and Intake Throttle
Module Power, Ground, Serial Data, and MIL
Engine Data Sensors - EGR Valve and Glow Plug Controls
Engine Data Sensors - EGR Valve and Glow Plug Controls
Fuel Controls - Suction Control Valve, Water-In-Fuel/Fuel Temperature Sensors
Figure 5:

Engine Data Sensors - Pedal Position, High Idle Switch


Object Number: 1863778  Size: FS
Master Electrical Component List
Engine Control Component Description
Control Module References
Engine Data Sensors - VSS and Injection Timing Controls
Engine Data Sensors - Pressure, Temperature, and Turbocharger Controls
Fuse Block 1: Fuse 5 and Fuse Block I/P 1: Circuit Breakers 5, 9 - 1 of 2, and 10
G400 and G402 - 3 of 8
Fuse Block 1: Fuse 5 and Fuse Block I/P 1: Circuit Breakers 5, 9 - 1 of 2, and 10
Figure 6:

Engine Data Sensors - VSS and Injection Timing Controls


Object Number: 1863785  Size: FS
Master Electrical Component List
Engine Control Component Description
Control Module References
Engine Data Sensors - EGR Valve and Glow Plug Controls
Engine Data Sensors - Pedal Position, High Idle Switch
Engine Controls Schematic Icons
Speed Sensors, Solenoids
2007 MD560T Manual Transmission Schematics
AUX Relay, C100 (Upfitter AUX WRG Connector), C201 (Upfitter Connector), Engine Control Module (ECM) and Rear Compartment Lamp Provisions
Gages
Engine Controls Schematic Icons
Engine Controls Schematic Icons
Figure 7:

Engine Data Sensors - EGR Valve and Glow Plug Controls


Object Number: 1863787  Size: FS
Master Electrical Component List
Glow Plug System Description
Control Module References
Fuel Controls - Suction Control Valve, Water-In-Fuel/Fuel Temperature Sensors
Engine Data Sensors - VSS and Injection Timing Controls
Splice Packs and Modules - 1 of 2
Engine Data Sensors - Pressure, Temperature, and Turbocharger Controls
Module Power, Ground, Serial Data, and MIL
Module Power, Ground, Serial Data, and MIL
Battery Supply and B+ Bus
Figure 8:

Fuel Controls - Suction Control Valve, Water-In-Fuel/Fuel Temperature Sensors


Object Number: 1863789  Size: FS
Master Electrical Component List
Fuel System Description
Control Module References
DPF Sensor, Exhaust Temperature Sensors,Exhaust Brake/Throttle Solenoid
Engine Data Sensors - EGR Valve and Glow Plug Controls
Gages
Engine Data Sensors - Pressure, Temperature, and Turbocharger Controls
G100, G101, G102, G107, G114, G208, G209, G210, G214, G400 and G402 - 1 of 8, G501, G502, G601, and G602
Fuse Block I/P 1: Circuit Breaker 6
Fuse Block I/P 1: Circuit Breaker 6
Driver Information Center (DIC)
Figure 9:

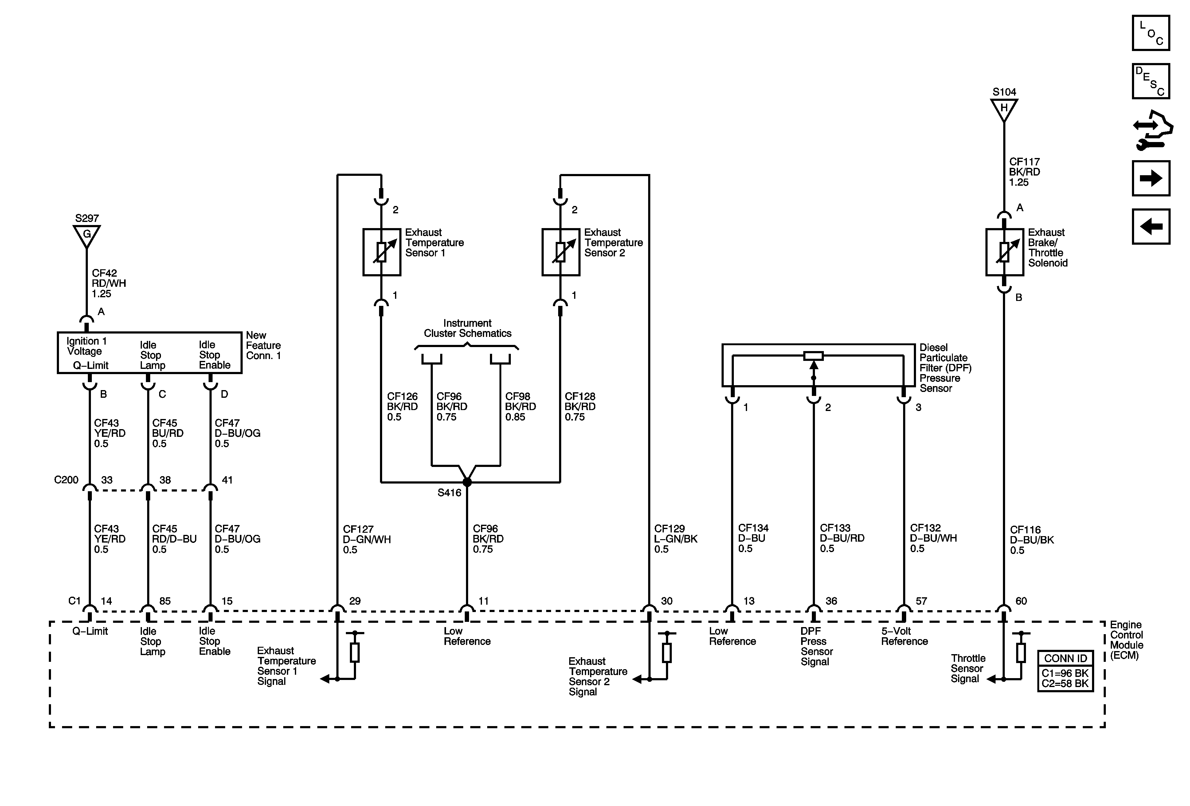
DPF Sensor, Exhaust Temperature Sensors, Exhaust Brake/Throttle Solenoid


Object Number: 1863791  Size: FS
Master Electrical Component List
Fuel System Description
Control Module References
Fuel Controls - Fuel Injectors
Fuel Controls - Suction Control Valve, Water-In-Fuel/Fuel Temperature Sensors
Module Power, Ground, Serial Data, and MIL
Gages
Module Power, Ground, Serial Data, and MIL
Figure 10:

Fuel Controls - Fuel Injectors


Object Number: 1863800  Size: FS
Master Electrical Component List
Fuel System Description
Control Module References
Controlled/Monitored Subsystem References
DPF Sensor, Exhaust Temperature Sensors,Exhaust Brake/Throttle Solenoid
Engine Controls Schematic Icons
Figure 11:

Controlled/Monitored Subsystem References


Object Number: 1863804  Size: FS
Master Electrical Component List
Engine Control Component Description
Control Module References
Fuel Controls - Fuel Injectors
Connectors C106, C120, C209, and Engine Control Module (ECM)
Cruise Control Schematics
2007 MD560T Manual Transmission Schematics
Starting
Charging
Indicators and Illumination
Gages
Connector C104, Engine Control Module (ECM) PTO Relay, Turn Signal Multifunction and PTO Switches
Connectors C106, C120, C209, and Engine Control Module (ECM)
Connector C104, Engine Control Module (ECM) PTO Relay, Turn Signal Multifunction and PTO Switches
2007 MD560T Engine Cooling Schematics
Gages
2007 MD560T Exhaust System Schematics
Stop Lamps
Backup Lamps and Backup Alarm (UZF)
2007 MD560T Two-Speed Rear Axle Schematics