GM Service Manual Online
For 1990-2009 cars only
Makes
🢒
Oldsmobile
🢒
2003
🢒
Bravada
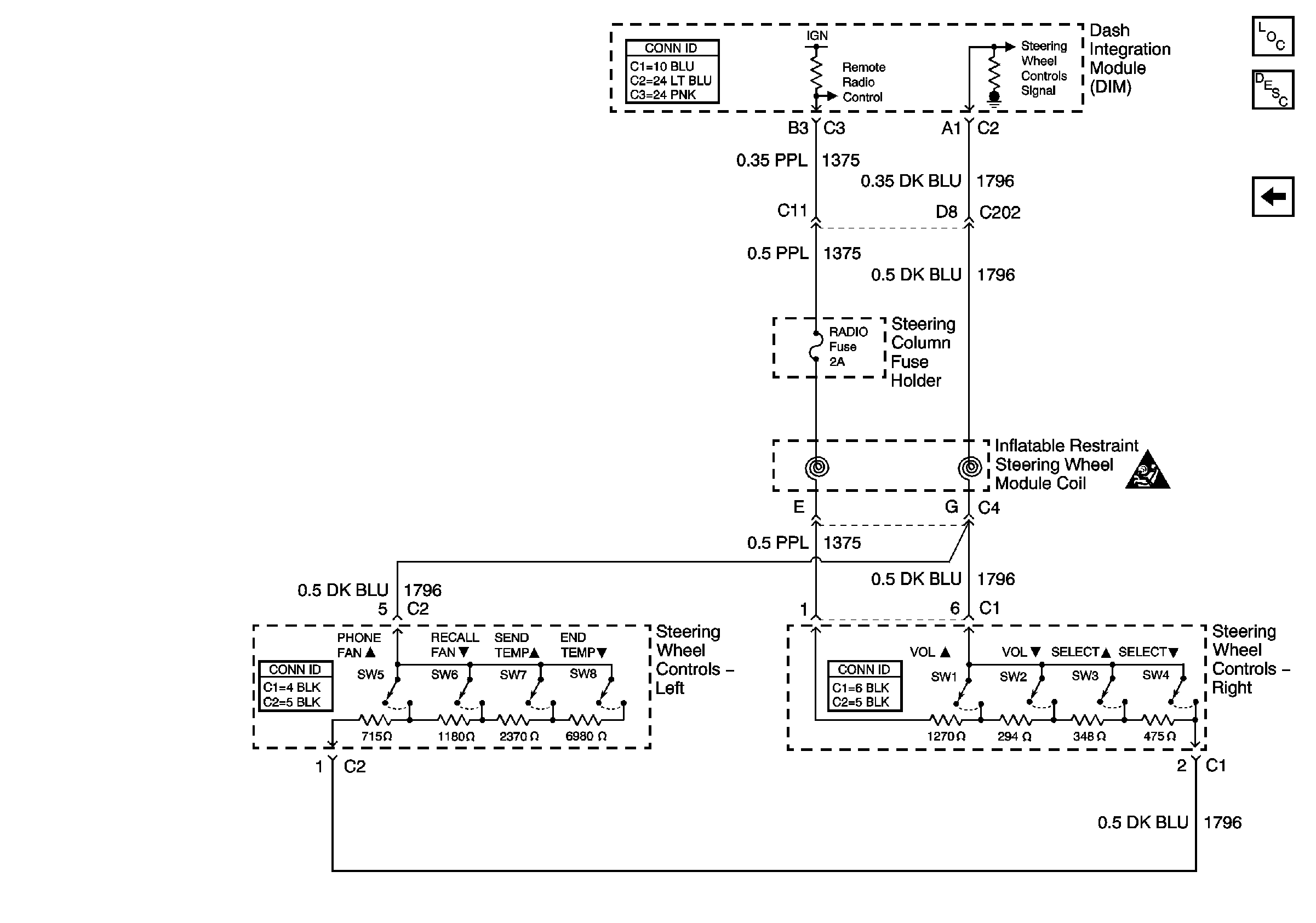
🢒 Steering Wheel Controls
Steering Wheel Controls
Steering Wheel Controls
Master Electrical Component List
Steering Wheel and Column Description and Operation
Actuators and Air Temperature Control
HVAC Compressor Control
HVAC Schematic Icons
Cruise Control Switches and Module Power and Gruond