GM Service Manual Online
For 1990-2009 cars only
Figure 1:

Module Power, Ground and Serial Data


Object Number: 2034114  Size: FS
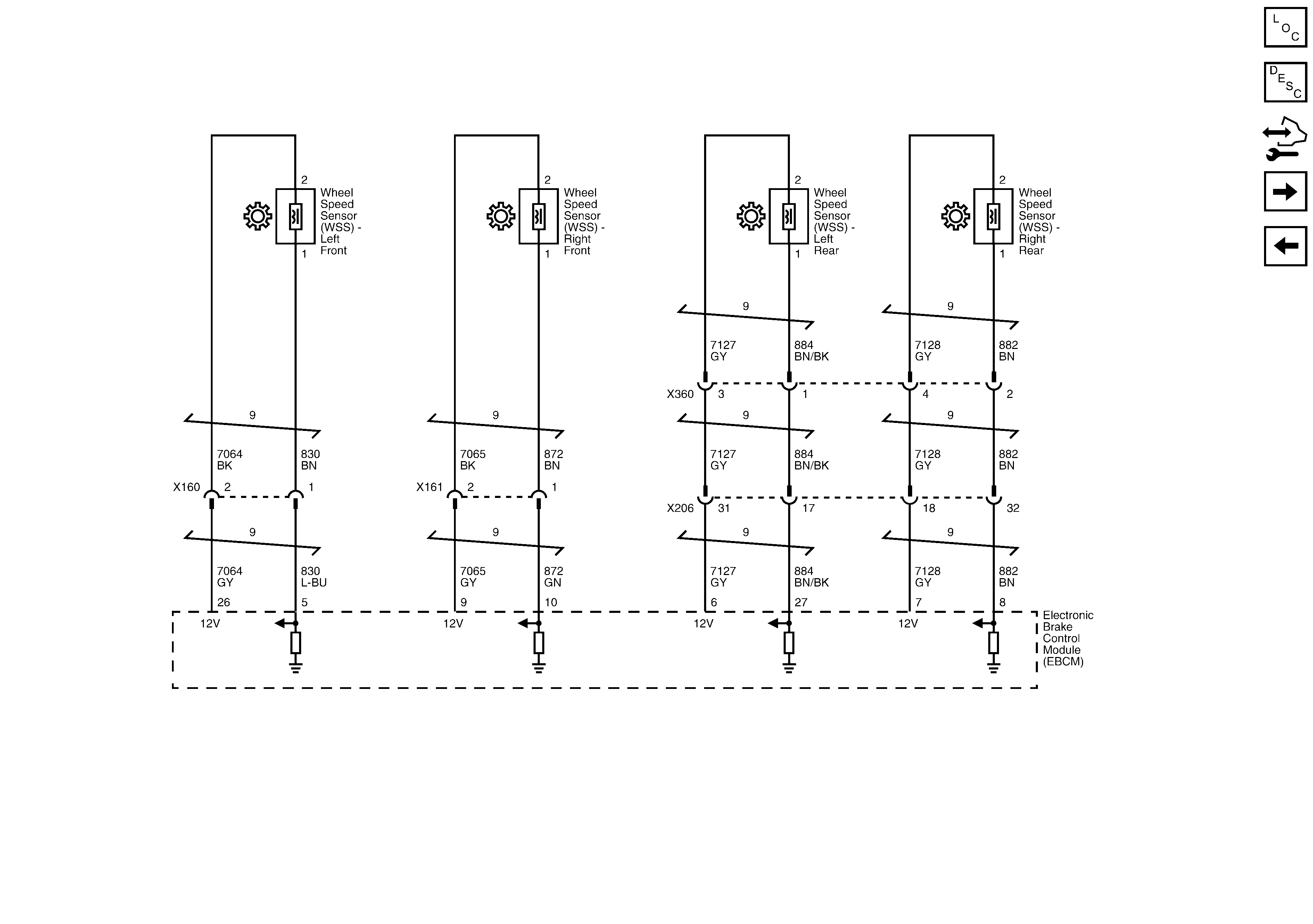
Figure 2:

Wheel Speed Sensors


Object Number: 2034116  Size: FS
Figure 3:

Electronic Stability Program Sensors


Object Number: 2034113  Size: FS