GM Service Manual Online
For 1990-2009 cars only
Makes
🢒
Saab
🢒
2007
🢒
9-7x
🢒
Diagnostic Navigation
🢒
Vehicle Diagnostic Information
🢒 Remote Function Schematics
Figure
1:
Keyless Entry
Master Electrical Component List
Keyless Entry System Description and Operation
Control Module References
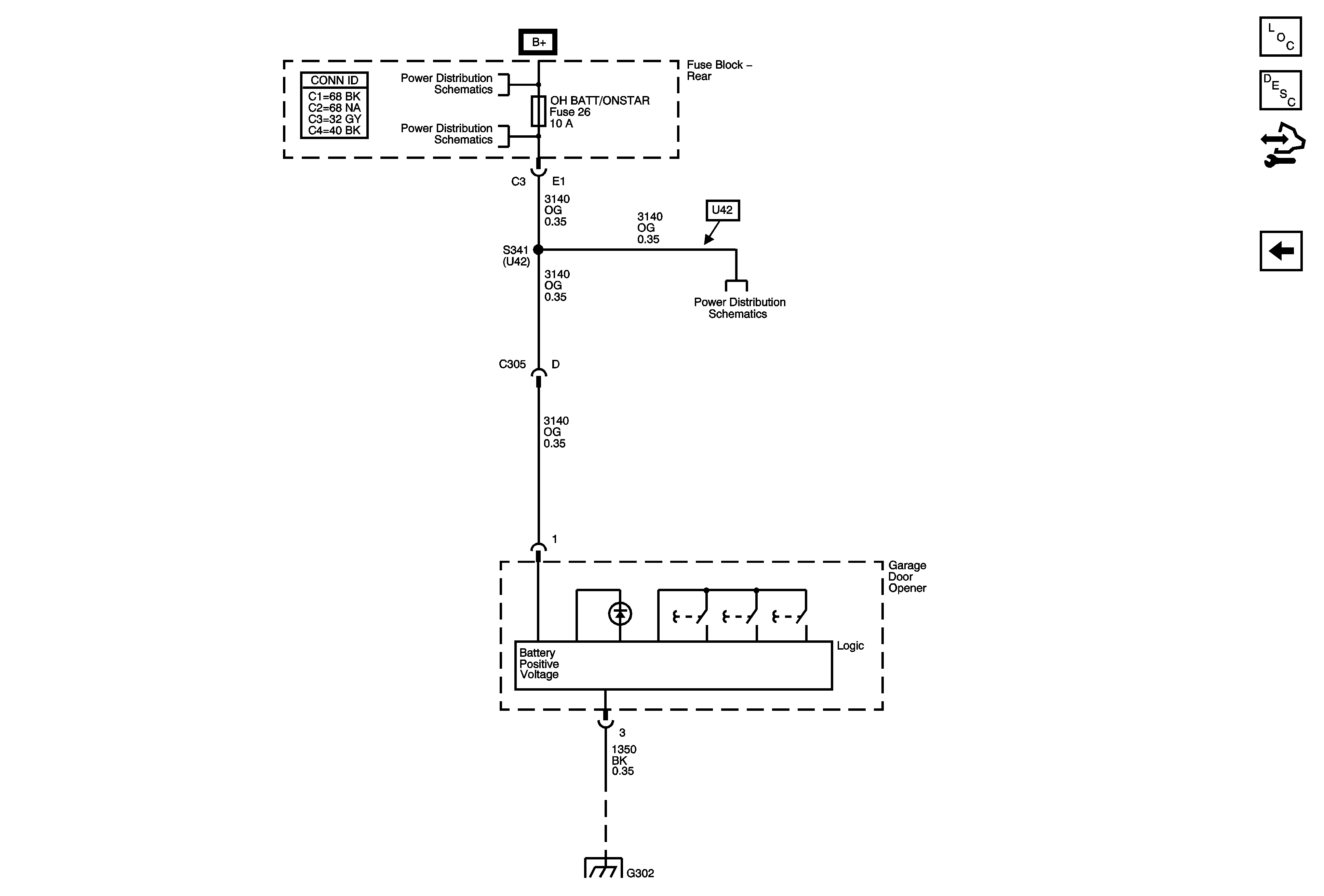
Garage Door Opener - UG1
B+ BUS - Underhood Fuse Block - 1 of 2
B+ BUS - Underhood Fuse Block - 2 of 2
G104, G105, and G107
B+ BUS - Underhood Fuse Block - 2 of 2
AIR SOL and PCM I Fuses
BCK/UP, BTSI, IGN E, and TRLR BCK/UP Fuses
AIR PUMP, EAP, ECM, PCM B, TBC I, and TCM CNSTR Fuses
G104, G105, and G107
AIR SOL and PCM I Fuses
AIR SOL and PCM I Fuses
BCK/UP, BTSI, IGN E, and TRLR BCK/UP Fuses
SP306
G302 - 1 of 2, G303, and G304
G302 - 2 of 2, and G306
Ignition Switch - ACCY/RUN, RUN/START Bus Bars, and IGNB1 Fuse
Ignition Switch - ACCY/RUN/START, RUN, START Bus Bars, and IGNA1 Fuse
Ignition Switch - ACCY/RUN/START, RUN, START Bus Bars, and IGNA1 Fuse
Rear Doors
SP205
Figure
2:
Garage Door Opener - UG1
Master Electrical Component List
Garage Door Opener Description and Operation
Control Module References
Keyless Entry
B+ BUS - Rear Fuse Block
HVAC B, LGM/DSM, OH BATT/ONSTAR, and RADIO Fuses
HVAC B, LGM/DSM, OH BATT/ONSTAR, and RADIO Fuses
G302 - 1 of 2, G303, and G304