GM Service Manual Online
For 1990-2009 cars only
Figure 1:

Power, Ground, Data Link and Engine Controls References


Object Number: 1501140  Size: FS
Master Electrical Component List
Body Control System Description and Operation
Control Module References
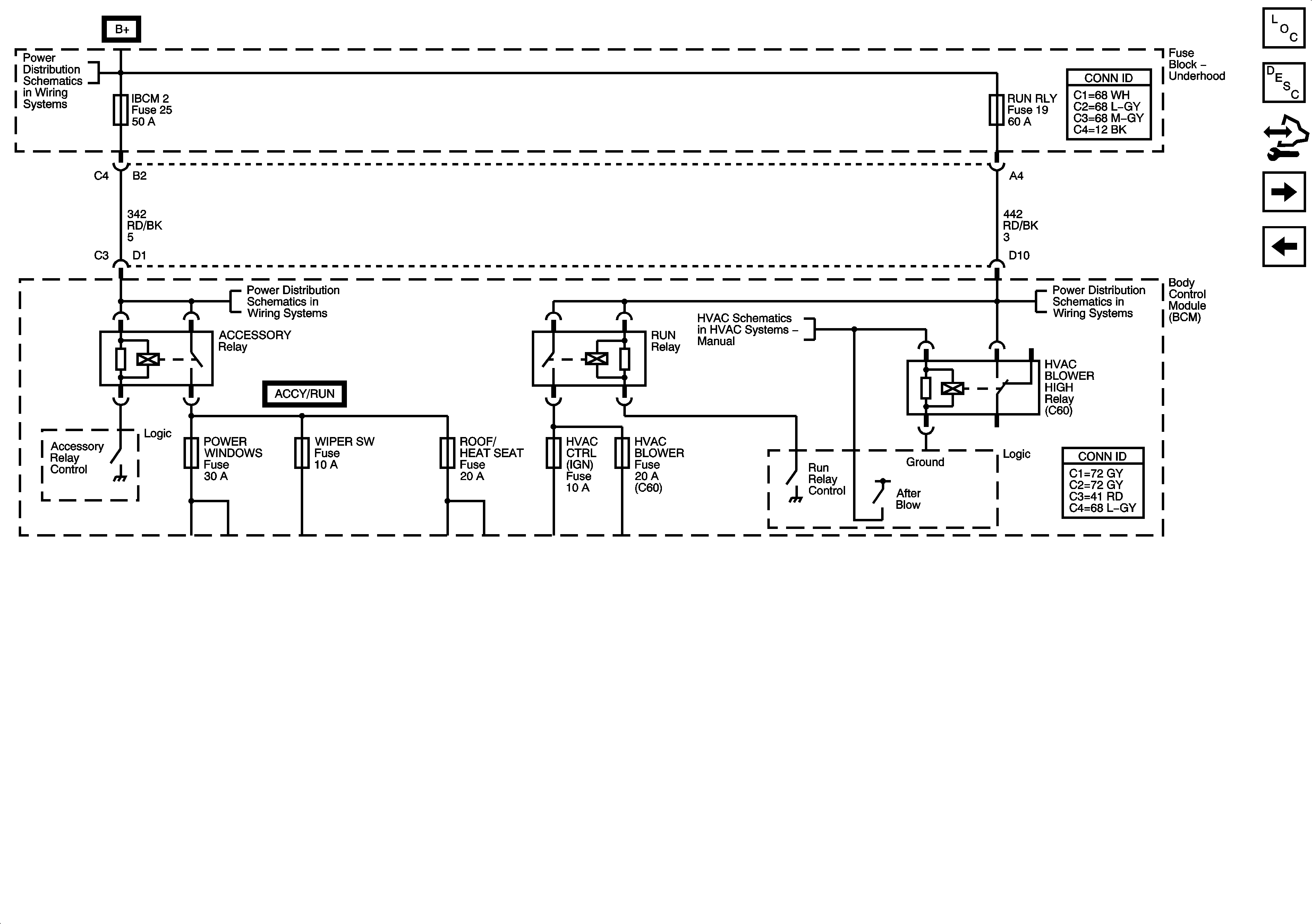
ACCESSORY, HVAC BLOWER HIGH and RUN Relays
Underhood Junction Block - IBCM Batt1, BCM - Radio/RFA, Ignigion Sensor, HVAC BATT, Cluster/Theft, Air Bag Batt Fuses
Power, Ground, Class 2 and High Speed Serial Data
Low Speed Serial Data
Underhood Junction Block - IBCM Batt1, BCM - Radio/RFA, Ignigion Sensor, HVAC BATT, Cluster/Theft, Air Bag Batt Fuses
Underhood Junction Block - ICBM Batt2, BCM - PWR Windows, Wiper Sw, Sunroof/HTD Seat Fuses
Underhood Junction Block - IBCM Batt1, BCM - Radio/RFA, Ignigion Sensor, HVAC BATT, Cluster/Theft, Air Bag Batt Fuses
Starting
G201
Underhood Junction Block - ICBM Batt2, BCM - PWR Windows, Wiper Sw, Sunroof/HTD Seat Fuses
G304 and G305
Figure 2:

Accessory, HVAC Blower High and RUN Relays


Object Number: 1501141  Size: FS
Master Electrical Component List
Body Control System Description and Operation
Control Module References
Power, Ground, and Communications - Page 3 of 4
Power, Ground, Data Link and Engine Controls References
Underhood Junction Block - ICBM Batt2, BCM - PWR Windows, Wiper Sw, Sunroof/HTD Seat Fuses
Underhood Junction Block - ICBM Batt2, BCM - PWR Windows, Wiper Sw, Sunroof/HTD Seat Fuses
Power, Ground, and Blower Motor Controls
Underhood Fuse Block - Run Relay, RBEC Battery 2 Fuses, Rear Fuse BLock - Driver Power Seat, Fuel Pump, Park Lamps, Trunk Release, ERLS Fuses
Figure 3:

ABS, A/T Shift Lock Controls, Brake Warning, Cruise Control, Door Lock/Indicator, Engine Controls and Engine Cooling References


Object Number: 1501146  Size: FS
Master Electrical Component List
Body Control System Description and Operation
Control Module References
Adjustable Pedals, Body Rear End, Defogger, Headlights/DRL, Horns, and Wiper/Washer References
ACCESSORY, HVAC BLOWER HIGH and RUN Relays
Power, Serial Data, and MIL
Tap Up/Tap Down
Engine Coolant Indicator
Brake Pedal Position Sensor, Traction control Switch and Data Link communications
Brake Warning System
Power, Serial Data, and MIL
Shift Lock Control System
Mode and Air Temperature Controls
Power, Ground, and Blower Motor Controls
Power, Ground, Serial Data and Switches
Door Lock Switches
Door Lock Actuators
Door Ajar Indicators
Figure 4:

Adjustable Pedals, Body Rear End, Defogger, Headlights/DRL, Horns and Wiper/Washer References


Object Number: 1501151  Size: FS
Master Electrical Component List
Body Control System Description and Operation
Control Module References
Lighting System References Continued
Power, Ground, and Communications - Page 3 of 4
Adjustable Pedals
Keyless Entry
Vehicle Theft Deterrent (VTD) System
Defogger
Horns
Front Wiper/Washers
Sedan
Extended Sedan
DRL
Figure 5:

Lighting System References Continued


Object Number: 1501153  Size: FS
Master Electrical Component List
Body Control System Description and Operation
Control Module References
Adjustable Pedals, Body Rear End, Defogger, Headlights/DRL, Horns, and Wiper/Washer References
Fog Lights
Ambient Light Sensor, Brake Pedal Position Sensor, Hazard Switch and Turn Signal/Multifunction Switch
Park Lamps
Turn Signals and Stop Lamps
License Lamps and Backup Lamps
Outputs
Displays